Now Shinyoung Asset

 

 

임차가능빌딩

> Now Shinyoung Asset > 임차가능빌딩 안내

 

배재정동빌딩(B동)

서울특별시 중구 서소문로11길 19 (정동)

 

 

■ 조감도

 

 

 

■ 기본정보

 

빌딩명   배재정동빌딩(B동) 규모   B4/12F
연면적   15,159.22㎡ 대지면적   10,169.93㎡
기준층면적   전용 664.34㎡ 전용률   48.92%
층고   2.5m 구조   SRC
승강설비   3대 준공년도   2004년 01월
소재지   서울특별시 중구 서소문로11길 19 (정동)
주차조건   총 277대 (무료: 1대/평, 유료: 월16만원/대(VAT포함))

 

 

■ 임대조건

(단위: 원)
공실층 전용면적(3.3㎡) 임대면적(3.3㎡) 보증금(3.3㎡) 임대료(3.3㎡) 관리비(3.3㎡) 입주시기

 

 

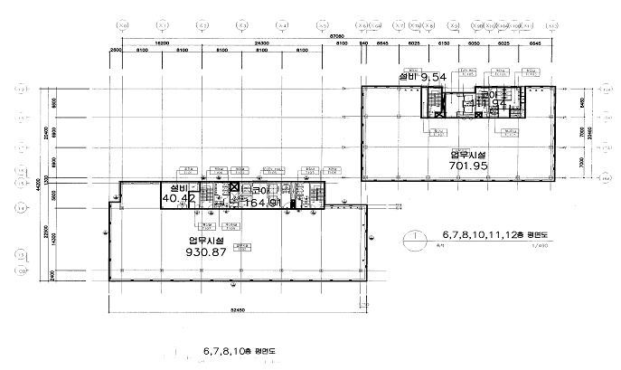
■ 위치도 / 평면도

 

- 2호선 시청역 도보 5분

 

 

 

■ Contact Point

 

박정민 주임 | 010-7166-6310 | 010-7166-6310 | minpark@syasset.com

 

목록보기

개인정보취급방침 | 이메일 집단수집거부

서울특별시 강남구 영동대로 517 아셈타워 14층 / TEL_ 02-6007-4960 / FAX_ 02-6007-4555

Copyright 2026 REI-KOREA.COM. All Rights Reserved.