Now Shinyoung Asset

 

 

임차가능빌딩

> Now Shinyoung Asset > 임차가능빌딩 안내

 

KT&G 서대문타워

서울특별시 서대문구 충정로 60 (미근동)

 

 

■ 조감도

 

 

 

■ 기본정보

 

빌딩명   KT&G 서대문타워 규모   B5/14F
연면적   36,368.06㎡ 대지면적   5,114.10㎡
기준층면적   전용 1220.38㎡ 전용률   49.45%
층고   2.6m 구조   철골철근콘크리트구조
승강설비   8대 준공년도   2011년 09월
소재지   서울특별시 서대문구 충정로 60 (미근동)
주차조건   총 283대 (무료: 1대/60.0평, 유료: 월14만원/대(VAT포함))

 

 

■ 임대조건

(단위: 원)
공실층 전용면적(3.3㎡) 임대면적(3.3㎡) 보증금(3.3㎡) 임대료(3.3㎡) 관리비(3.3㎡) 입주시기

9F

369.2

746.63

740,000

74,000

36,000

즉시

5F

355.25

718.44

740,000

74,000

36,000

2022.12

3F

70.77

151.97

740,000

74,000

36,000

2022.11

Total

795.22003

1617.04

-

-

-

-

 

 

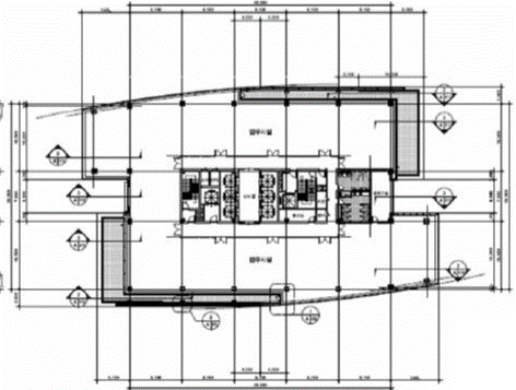
■ 위치도 / 평면도

 

- 5호선 서대문역 도보 3분

 

 

 

■ Contact Point

 

강정일 주임 | 02-6001-2705 | 010-2042-5711 | jungil.kang@syasset.com

 

목록보기

개인정보취급방침 | 이메일 집단수집거부

서울특별시 강남구 영동대로 517 아셈타워 14층 / TEL_ 02-6007-4960 / FAX_ 02-6007-4555

Copyright 2026 REI-KOREA.COM. All Rights Reserved.