Now Shinyoung Asset

 

 

임차가능빌딩

> Now Shinyoung Asset > 임차가능빌딩 안내

 

진양빌딩

서울특별시 서대문구 경기대로 47 (충정로2가)

 

 

■ 조감도

 

 

 

■ 기본정보

 

빌딩명   진양빌딩 규모   B4/8F
연면적   15,463.00㎡ 대지면적   2,888.46㎡
기준층면적   전용 867.11㎡ 전용률   54.25%
층고   2.4m 구조   철근콘크리트구조
승강설비   3대 준공년도   1995년 11월
소재지   서울특별시 서대문구 경기대로 47 (충정로2가)
주차조건   총 108대 (무료: 1대/70.0평, 유료: 월12만원/대(VAT포함))

 

 

■ 임대조건

(단위: 원)
공실층 전용면적(3.3㎡) 임대면적(3.3㎡) 보증금(3.3㎡) 임대료(3.3㎡) 관리비(3.3㎡) 입주시기

8F

59.3

109.3

즉시

1F

65.5

120.7

즉시

B1

25.6

47.1

즉시

Total

150.40001

277.1

-

-

-

-

 

 

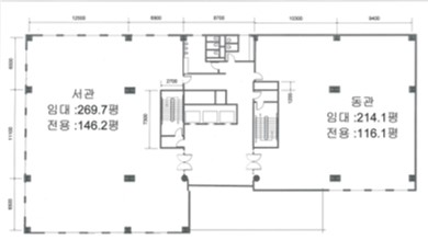
■ 위치도 / 평면도

 

- 5호선 충정로역, 서대문역 도보 7분

 

 

 

■ Contact Point

 

강정일 주임 | 02-6001-2705 | 010-2042-5711 | jungil.kang@syasset.com

 

목록보기

개인정보취급방침 | 이메일 집단수집거부

서울특별시 강남구 영동대로 517 아셈타워 14층 / TEL_ 02-6007-4960 / FAX_ 02-6007-4555

Copyright 2026 REI-KOREA.COM. All Rights Reserved.