Now Shinyoung Asset

 

 

임차가능빌딩

> Now Shinyoung Asset > 임차가능빌딩 안내

 

JW타워

서울특별시 서초구 남부순환로 2477 (서초동)

 

 

■ 조감도

 

 

 

■ 기본정보

 

빌딩명   JW타워 규모   B5/14F
연면적   29,784.84㎡ 대지면적   4,588.62㎡
기준층면적   전용 872.17㎡ 전용률   45.40%
층고   2.6m 구조   SRC
승강설비   4대 준공년도   1990년 12월
소재지   서울특별시 서초구 남부순환로 2477 (서초동)
주차조건   총 185대 (무료: 1대/평, 유료: 월12만원/대(VAT포함))

 

 

■ 임대조건

(단위: 원)
공실층 전용면적(3.3㎡) 임대면적(3.3㎡) 보증금(3.3㎡) 임대료(3.3㎡) 관리비(3.3㎡) 입주시기

 

 

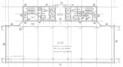
■ 위치도 / 평면도

 

- 3호선 남부터미널역 도보 7분

 

 

 

■ Contact Point

 

 

목록보기

개인정보취급방침 | 이메일 집단수집거부

서울특별시 강남구 영동대로 517 아셈타워 14층 / TEL_ 02-6007-4960 / FAX_ 02-6007-4555

Copyright 2026 REI-KOREA.COM. All Rights Reserved.