Now Shinyoung Asset

 

 

임차가능빌딩

> Now Shinyoung Asset > 임차가능빌딩 안내

 

태평양물산빌딩

서울특별시 구로구 디지털로31길 12 (구로동)

 

 

■ 조감도

 

 

 

■ 기본정보

 

빌딩명   태평양물산빌딩 규모   B4/19F
연면적   46,549.73㎡ 대지면적   6,320.00㎡
기준층면적   전용 925.32㎡ 전용률   52.00%
층고   2.7m 구조   철골철근콘크리트구조
승강설비   9대 준공년도   2010년 06월
소재지   서울특별시 구로구 디지털로31길 12 (구로동)
주차조건   총 351대 (무료: 1대/50.0평, 유료: 월12만원/대(VAT포함))

 

 

■ 임대조건

(단위: 원)
공실층 전용면적(3.3㎡) 임대면적(3.3㎡) 보증금(3.3㎡) 임대료(3.3㎡) 관리비(3.3㎡) 입주시기

9F

279.9

540.13

즉시

Total

279.9

540.13

-

-

-

-

 

 

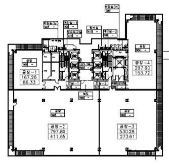
■ 위치도 / 평면도

 

- 2호선 구로디지털단지역 도보 6분 - 7호선 남구로역 도보7분

 

 

 

■ Contact Point

 

강정일 주임 | 02-6001-2705 | 010-2042-5711 | jungil.kang@syasset.com 박정민 주임 | 010-7166-6310 | 010-7166-6310 | minpark@syasset.com

 

목록보기

개인정보취급방침 | 이메일 집단수집거부

서울특별시 강남구 영동대로 517 아셈타워 14층 / TEL_ 02-6007-4960 / FAX_ 02-6007-4555

Copyright 2026 REI-KOREA.COM. All Rights Reserved.